Skip to content
View in the app

A better way to browse. Learn more.

கருத்துக்களம்

A full-screen app on your home screen with push notifications, badges and more.

To install this app on iOS and iPadOS
  1. Tap the Share icon in Safari
  2. Scroll the menu and tap Add to Home Screen.
  3. Tap Add in the top-right corner.
To install this app on Android
  1. Tap the 3-dot menu (⋮) in the top-right corner of the browser.
  2. Tap Add to Home screen or Install app.
  3. Confirm by tapping Install.

யாழ்ப்பாண கலாசார நிலையம்

Featured Replies

யாழ்ப்பாணம் பொது நூலகம் மற்றும் புல்லுக்குளம் இரண்டிற்கும் இடையில், முன்பு  திறந்வெளி அரங்கு இருந்த இடத்தில் யாழ் மாநகரசபைக்கு சொந்தமான காணியில், குறிப்பிட்ட யாழ்ப்பாண கலாசார நிலையம் அமைகின்றது. இந்திய அரசின் 10 மில்லியன் அமெரிக்க டொலர் நிதி உதவியில் அமைக்கப்படுகின்றது. இதற்கான கட்டட வடிவமைபப்பு ஆனது, 2011 யூன் மாதம் அறிவிக்கப்பட்ட கட்டடக்கலைஞர்கள் இடையில் நடத்தபட்ட போட்டியின் ஊடக தெரிவு செய்யப்பட்டது
 
main%2B001.jpg
 
 
இப்போட்டியினை இலங்கை கட்டடக்கலைஞர் அமைப்பு மற்றும் இந்திய உயர்தானிகரகம் இணைந்து மேற்கொண்டனர். போட்டியில் பங்குபற்றிய இலங்கை மற்றும் இந்தியாவைச் சேர்ந்த 29 வடிவமைப்பாளர்களில் கொழும்பில் வசிக்கும் கட்டடக்கலைஞர் மதுர பிறேமதிலக மற்றும் அவரது நிறுவனத்தினர் முதலிடம் பெற்றனர். இவருடைய கற்பனையில் உருவான கட்டடம் 2016 ஆம் ஆண்டு செம்டெம்பர் மாதம் ஆரம்பிக்கப்பட்டு முடிவுறும் தருவாயில் இருக்கின்றது. 
 
கட்டட வடிவமைப்பு பற்றி
 
குறித்த திட்டத்திற்கான எண்ணம் பின்வரும் ஆரம்பப்புள்ளிகளில் இருந்து உருவாகியதாக கட்டடக்கலைஞர் மதுர றேமதிலக அவர்கள் குறிப்பிட்டுள்ளார்.
 
concept%2B002.jpg
 
1.             அருகில் இருக்கு பொது நூலகம்
2.             யாழ்ப்பாணத்தில் உள்ள பொது வெளிகளில் முக்கியமான கோவில்கள். அங்கு இருக்கும் தேர் முட்டி, படிகள், கேணி.
3.             யாழ்ப்பாணத்தவர்கள் கல்விக்கு அளிக்கும் முக்கியத்துவம்.  
 
இவற்றைக் கருத்தில் கொண்டு மொத்த கட்டடத் தொகுதி நான்கு பகுதிகள் கொண்டு வடிவமைக்கப்பட்டது.
 
 
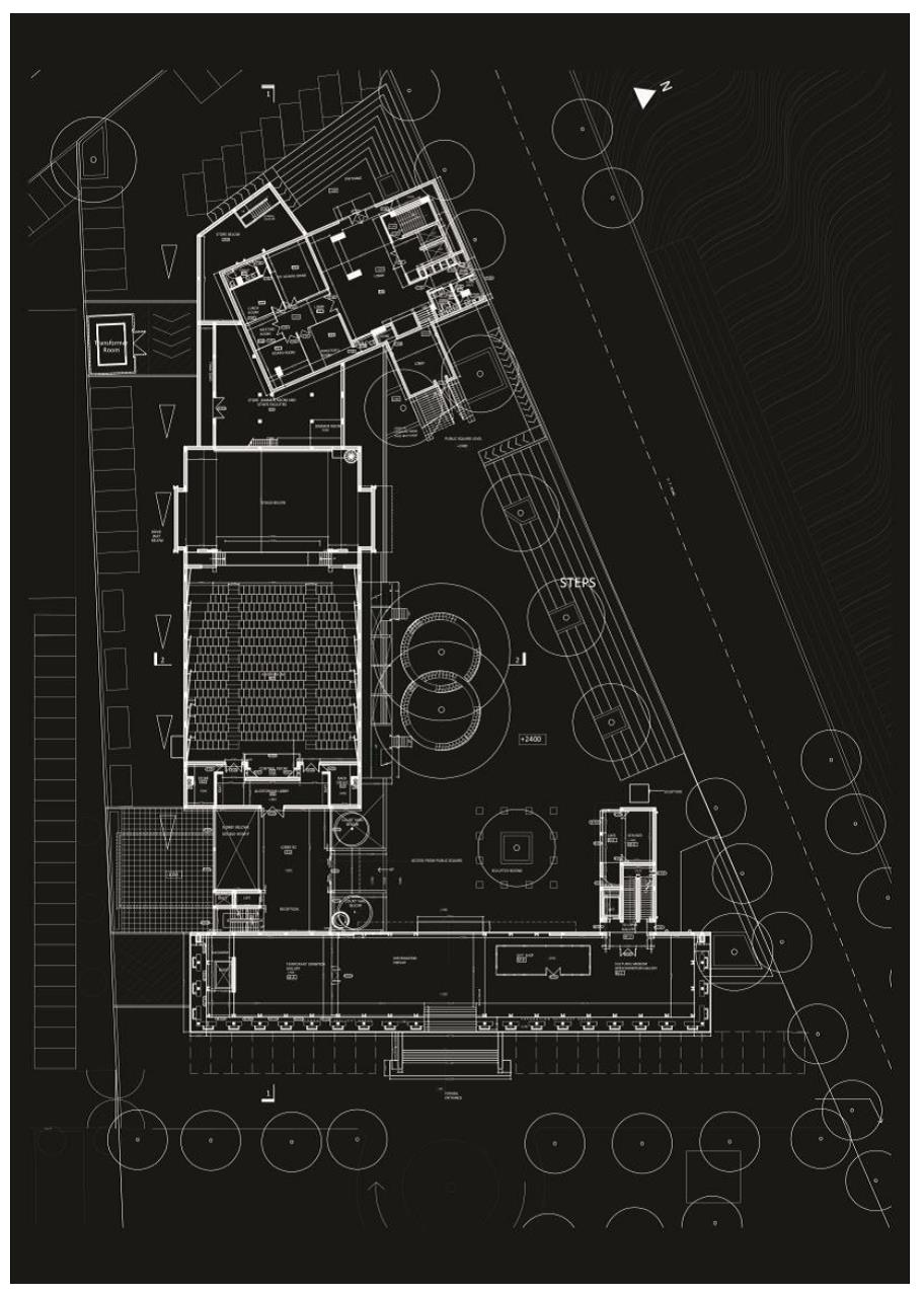
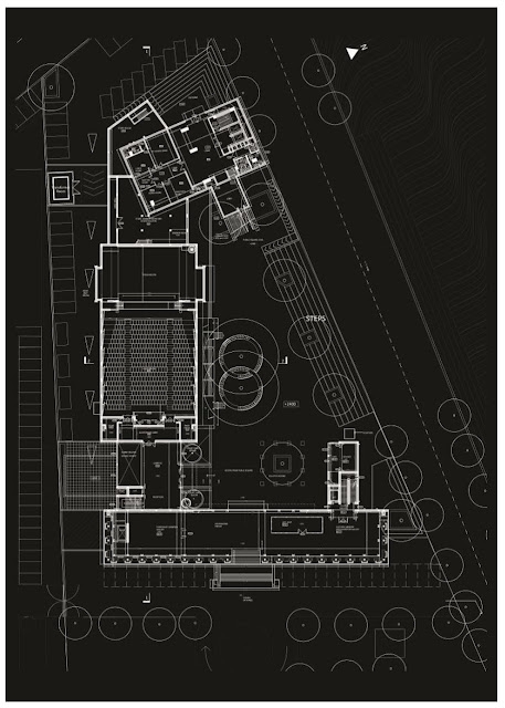
plan%2B003.jpg

அருங்காட்சியகம் - இந்தக்கட்டம் பொது நூலகத்திற்கு சமாந்தரமாக அதன் உயரத்திற்கு மதிப்பளித்தும் உருவாக்கப்பட்டுள்ளது. இதன் காரணமாக மொத்தக்கட்டடத்தொகுதி நிலத்திற்குள் சிறுபகுதி அமிழ்த்தப்பட்டுள்ளது. இதில் நிரந்தர மற்றும் தற்காலிக காட்சியகம், தகவல் நிலையம் மற்றும் கட்டடத்தொகுதிக்கான சேவையாளர்களின் பகுதிகளை கொண்டுள்ளது.
 
004%2Bmuseum.jpg
 
 
இதனோடு சேர்ந்ததாக இரண்டாவது கட்டடம்  612  பேர் பயன்படுத்தும் வகையில் சகல வசதிகளுடைய ஆற்றுகைக்கான அரங்கு உள்ளது.
 
005%2Bauditorium.jpg
 
 
மேலும் மூன்றாவது பகுதியாக 12 தளங்கள் கொண்ட கற்றல் கோபுரம் உள்ளது. இதில் முகாமையாளர் மற்றும் ஊழியர்கள் பகுதி, 100 பேர் பங்குபற்றக்கூடிய கேட்போர் கூடம், சிற்றூண்டிச்சாலை, பல்லூடக வசதி கொண்ட நூலகம், வகுப்பறைகள் மற்றும் பார்வையாளர் தளம் - இதில் நின்று யாழ்பாணத்தின் பெரும்பகுதியை பார்வையிடக்கூடிய வசதி உண்டு. இக்கட்டடம் முழுமையாக இயற்கை சக்தியில் இயங்கும் வகையில் சூரிய ஒளியில் மின்சாரம் தயாரிக்கப்படும் வசதி உண்டு. இயற்யான காற்று உள் வரும் வகையில் பெரிய சாளரங்களும், மேலும் கோபுரத்திலில் நேரடியாக சூரியக்கதிர்கள்  விழாத வகையில் மரச் சலாகைகளால் முற்றாக போர்க்கப்ட்டுள்ளது.
 
நான்காவது  பகுதி திறந்தவெளி இதில்  வேப்ப மரங்கள், அமர்ந்து இளைப்பாறுவதற்கு இருக்கை வசதிகள், சிற்றூண்டிச்சாலை, சித்திரங்களை காட்சிப்படுத்தும்  சுவர், சுவரில் உள்ள சிறிய மேடை, கோவில் தேர் முட்டிகளில் காணப்படுவது போலான படிகள் அதன் தொடர்ச்சியாக புல்லுக்குளத்தில் படிகளும், குளத்தில்  மிதக்கும் மேடையும் உண்டு. இந்தப் பகுதி மக்கள் இலவசமாக பயன்படுத்தும் வகையில் வடிவமைக்கப்பட்டுள்ளது.
 
 
007%2Bps.jpg
 
008%2Bps.jpg
 
006%2Bps.jpg
 
 
இதில் குறிப்பிடப்படக்கூடிய முக்கியமான விடயம் கலாசார  நிலையத்தை சுற்றி பாதுகாப்பு வேலிகளோ உள்ளே வருவதை கட்டுப்படுத்துவதற்கான கதவுகளோ இல்லை. இதனூடாக இது எல்லோருக்குமான  இடமாக வெளிப்படுத்தப்படுகின்றது. எல்லோரும் பங்குபற்றி பயன்பெறலாம்  என்பதால்  இது கட்டடக்கலையூடாக ஜனநாயகத்தை வெளிப்படுத்தி நிற்கின்றது.
 
சுற்றியுள்ள மூன்று பாதைகளினூடக எவரும் உள் நுழையலாம் ஆனாலும் முக்கிய மூன்று கட்டடங்களுக்கான பாதுகாப்பு ஏற்றபாடுகளும் தனித்தனியான முகாமைத்துவமும் உள்ளது.
யாழ்ப்பாணக் கலாசார நிலையமானது சர்வதேச தரத்தில் கலை ஆற்றுகைகளை நிறைவேற்றும் வகையில் பாரிய நிதிச்செலவில் வடிவமைக்கப்பட்டுள்ளது
 
குறித்த கட்டடதொகுதியை பராமரிப்பது மற்றும் திறம்பட இயக்குவது என்பது யாழ் மாநகரசபையால் தற்போதுள்ள நிலையில் இயலாத காரியம் என நகரபிதா அவர்கள் நல்லூர் கோவில் வீதியில் அமைந்துள்ள Sri Lanka Archive of Contemporary Art, Architecture & Design என்ற நிலையத்தில் மார்ச் மாதம் 31ஆம் திகதி இடம்பெற்ற கலந்துரையாடலில தெரிவித்திருந்தார். போதியளவான ஆளணியினர் மற்றும் இதர செலவுகள் போன்றவற்றுக்கு  மாதாந்தம் அண்ணளவாக 5 மில்லியன் ரூபா வரையில் செலவாகலாம் என உத்தேச மதிப்பீடுகள் தெரிவிக்கின்றன.
 
அது மட்டுமல்லாமல் இதுவரையிலும் கலாசார நிலையத்தை இயக்குவதற்கும் பராமரிப்பதற்கும் தேவையான ஆளணியினரை தயார்ப்படுத்தும் பணிகள்  ஆரம்பிக்கப்படவில்லை. இந்தநிலையில் குறித்த கலாசார நிலையத்தின் எதிர்காலச் செயற்பாடுகள் என்பது கேள்விக்குறியாக உள்ளது.
arch.%2Bmadhura.jpg
 
இது பற்றி பிராதன வடிவமைப்பாளராகிய கட்டடக்கலைஞர் மதுர பிறேமதிலக கருத்து தெரிவித்த போது  கலாசார நிலையத்தின் முகாமைத்துவம் என்பது தனியாக அரச கட்டமைப்பான மாநகர சபையால் மட்டும் மேற்கொள்ளப்படாது அரச மற்றும் தனியார் பங்களிப்புடன் சேர்ந்த கட்டமைப்பால் நிர்வகிக்கப்படலாம். குறித்த நிர்வாக அணியில் அர்ப்பணிப்புடன் இயங்கக்கூடிய சர்வதேச தொடர்புகள் உள்ளவர்கள் நியமிக்கப்பட்டால் அவர்களுடாக நிதி திரட்டல்கள் மேற்கொள்ளப்பட்டு தொடர்ச்சியாக இயங்க முடியும் மேலும் நிலையத்தை முகாமைத்துவம் செய்வதற்கு கலைசார்ந்த போதிய அறிவும், திறமையுள்ள உள்நாட்டு மற்றும் வெளிநாட்டு நிபுணர்களின் உதவியுடன் சர்வதேச தரத்தில் முகாமைத்துவம் செய்தால் மட்டுமே இந்த நிலையத்தின் வெற்றி தங்கியுள்ளது எனத் தெரிவித்தார்.
 
மேலும் சகல விதமான நிதி நிலையில் உள்ளவர்களும் பயன்பெறும் வகையில் வடிவமைக்கப்பட்டுள்ள  நிலையத்தின் வெற்றியையும் நீடித்த தன்மையையும் உறுதிப்படுத்த வேண்டிய பொறுப்பு மக்களுடையதே எனவும் தெரிவித்தார்.
 
யாழ்ப்பாணத்தில் கலாசார நிலையமானது இயங்கும் போது கலைகளை வளர்ப்பதற்கும் ஆற்றுகைகளை காட்சிப்படுத்தவும் ஒரு மத்திய நிலையமாக இருக்கும். இந்நிலையம் மக்களால்  முழுமையாக பயன்படுத்தப்படுமானால் தென்னாசியாவிலேயே கலைகளுக்கான மத்திய நிலையமாக உருவாகும் எனவும் தெரிவித்தார் இதன் வடிவமைப்பாளர் கட்டடக்லைஞர் மதுர பிறேமதிலக.
 
படங்கள் உதவி – TEAM ARCHITRAVE

கு.பதீதரன்
கட்டடக்கலைஞர்
  • கருத்துக்கள உறவுகள்

நல்ல வருமானம் தரக்கூடிய ஒர் தொழிலே ஆர்க்கிடெக்

Archived

This topic is now archived and is closed to further replies.

Important Information

By using this site, you agree to our Terms of Use.

Account

Navigation

Search

Search

Configure browser push notifications

Chrome (Android)
  1. Tap the lock icon next to the address bar.
  2. Tap Permissions → Notifications.
  3. Adjust your preference.
Chrome (Desktop)
  1. Click the padlock icon in the address bar.
  2. Select Site settings.
  3. Find Notifications and adjust your preference.